Listed by Coldwell Banker Realty Bedford NH (Cell: 603-566-6806)
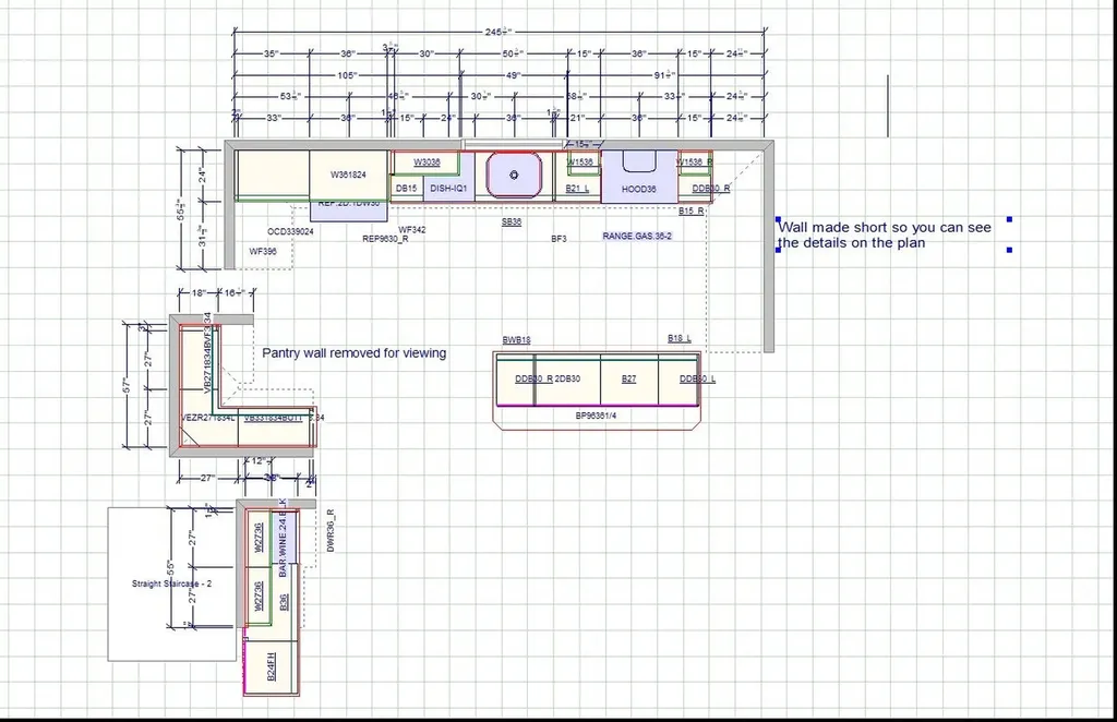
Experience refined living in this brand-new construction home thoughtfully designed for today's lifestyle. Nestled in one of Nashua's most desirable and established neighborhoods, this residence perfectly blends timeless craftsmanship with modern luxury. The main floor offers a FIRST floor primary suite, first floor office, great room, eat-in kitchen and laundry. Second floor offers three more bedrooms, a loft, and two more bathrooms. With city water, public sewer, natural gas, and proximity to downtown Main St., dining, shops, boutiques, and major commuter routes, this home offers both convenience and distinction. Revised Kitchen Floor Plan is under the photos and labeled as "Revised Kitchen Floor Plan". New Construction. Prime Location. Unmatched Quality. Photos/layout are of mirror image of actual building. To be completed Spring 2026. Buyers must sign Hold Harmless prior to showing, attached under "Documents".

Listing Tools

Property Details of 4 Reservoir Street

Property Details

Interior Features

Exterior Features

Community

Map Location

Broker Reciprocity 

Copyright 2025 PrimeMLS, Inc. All rights reserved. This information is deemed reliable, but not guaranteed. The data relating to real estate displayed on this display comes in part from the IDX Program of PrimeMLS. The information being provided is for consumers’ personal, non-commercial use and may not be used for any purpose other than to identify prospective properties consumers may be interested in purchasing. Data last updated December 17, 2025 7:52 AM EST

 

Hi there! How can we help you?

Contact us using the form below or give us a call.

Send Us A Message:

I agree to receive marketing and customer service calls and text messages from Fontaine Family - The Real Estate Leader. To opt out, you can reply 'stop' at any time or click the unsubscribe link in the emails. Consent is not a condition of purchase. Msg/data rates may apply. Msg frequency varies. Privacy Policy.

Do not fill in this field:

This site is protected by reCAPTCHA and the Google Privacy Policy and Terms of Service apply.

Hi there! How can we help you?

Contact us using the form below or give us a call.

Send Us A Message:

Do not fill in this field:

This site is protected by reCAPTCHA and the Google Privacy Policy and Terms of Service apply.

Hi there! How can we help you?

Contact us using the form below or give us a call.

Send Us A Message:

Do not fill in this field:

This site is protected by reCAPTCHA and the Google Privacy Policy and Terms of Service apply.

Do not fill in this field:

This site is protected by reCAPTCHA and the Google Privacy Policy and Terms of Service apply.

Do not fill in this field:

This site is protected by reCAPTCHA and the Google Privacy Policy and Terms of Service apply.

Do not fill in this field:

This site is protected by reCAPTCHA and the Google Privacy Policy and Terms of Service apply.

$

Do not fill in this field:

This site is protected by reCAPTCHA and the Google Privacy Policy and Terms of Service apply.